北京鑄誠大廈辦公裝修工程
| 項目名稱 | 北京鑄誠大廈辦公裝修工程 | 行業屬性 | 互聯網/電商/科技 |
| 項目地址 | 北京市海淀區中關村南大街 | 項目造價 | 45萬 |
| 主關鍵詞 |
▄原建筑結構分析: 設計風格上要求大氣穩重,設計師注重材料的原始用途和建筑屬性,盡量把材料用在它應該存在的地方,以還原建筑空間與材料的本性。
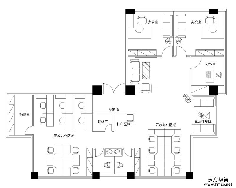
▄設計需求: 甲方對辦公空間的功能需求包括前臺接待區、公共辦公區、會議室、董事長辦公室、走廊、茶水間、財務室等,此外甲方希望可以將現有家具要合理利用上。設計師根據客戶要求,完成了平面布置圖。
▄設計風格定位: 本方案沒有刻意追求新材料和很前衛的工藝應用,我們更注重材料的原始用途和建筑屬性,盡量把材料用在它應該存在的地方,以還原建筑空間與材料的本性。讓效果都在預料之中,才是沉著穩重者的氣質。


北京鑄誠大廈辦公裝修工程
北京銀河SOHO辦公裝修工程
301醫院裝修工程
