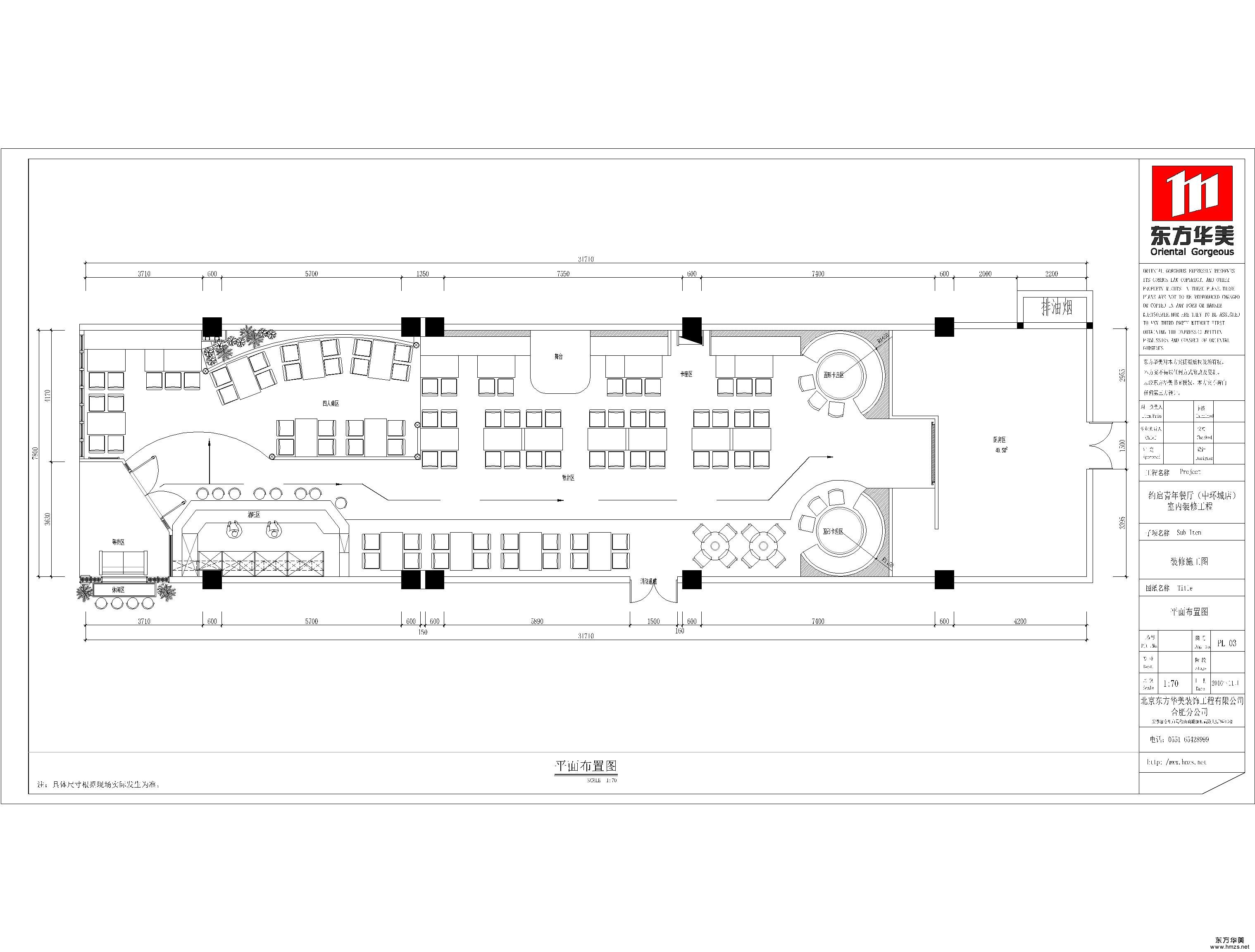
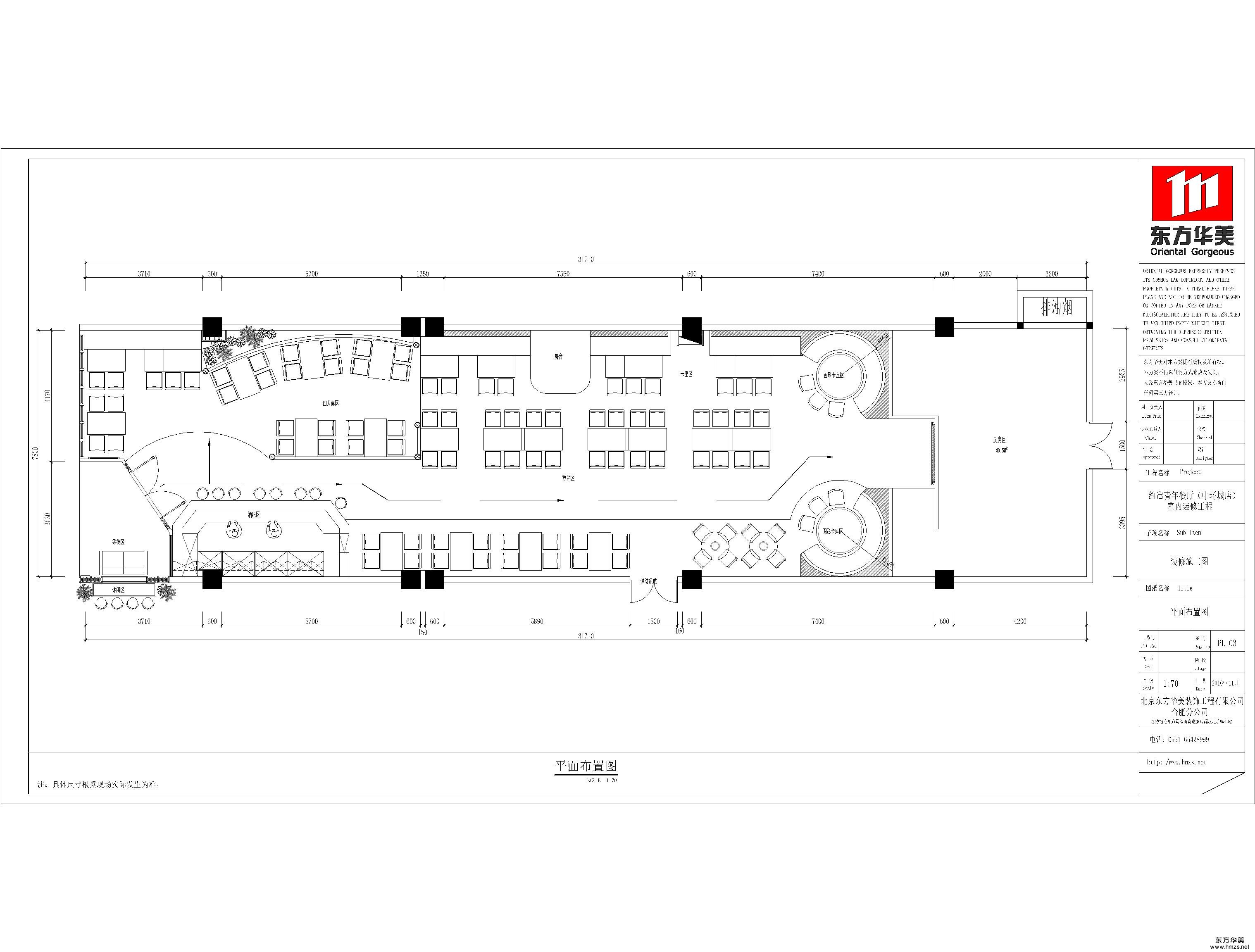
湘浙美食城餐廳裝修工程
| 項目名稱 | 湘浙美食城餐廳裝修工程 | 行業屬性 | 酒店/餐飲/會所 |
| 項目地址 | 長沙市岳麓區 | 項目造價 | 20.50萬 |
| 主關鍵詞 |
▄原建筑結構分析: 周圍文化墻面鋪成背景,使用木材、紅墻、金屬、燈光、綠植等裝飾華麗、壯觀。突顯主題餐廳的低調奢華,又具有強烈鮮明氛圍的空間特點,還強調了環境全范圍的特色化和鮮明化。挖掘主題文化的底蘊,主要就是做好主題餐廳環境設計,這樣才會帶來完美的裝修設計效果。
▄設計需求: 要求運用各種手段來凸顯所表現的主題,建筑設計與內部裝飾這方面是其中的重要組成部分,要求更高。因為客人就是通過對餐廳的環境裝飾這方面來認識其倡導的主題文化的,而進入主題餐廳所得到的特別享受,更多的來自于餐廳的美妙環境。
▄設計風格定位: 主題餐廳是通過一個或多個主題為吸引標志的飲食場所,希望人們身臨其中的時候,經過觀察和聯想,進入期望的主題情境,譬如“親臨”世界的另一端、重溫某段歷史、了解一種陌生的文化等。在主題文化的開放上,借助特色的建筑設計和內部裝飾來強化主題是非常必要的。


北京鑄誠大廈辦公裝修工程
北京銀河SOHO辦公裝修工程
301醫院裝修工程
